ОСОБЕННОСТИ:
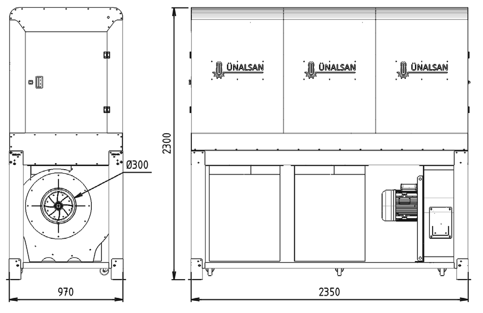
Аспирационная установка UNS 283 – промышленная аспирация, предназначена для высокоэффективной фильтрации воздуха от деревообрабатывающих станков. Фильтра из 100%-го полиэстера позволяют улавливать древесную пыль с диаметром частиц до 5 микрон, что соответствует европейским нормам безопасности для работающего персонала.
Корпус аспирационной установки полностью закрыт металлическим кожухом, где все стыки листового металла герметизированы силиконом. Это позволяет использовать установку не только внутри цеха, но и на улице. При наружной установке аспирации, в верху кожуха есть технологические отверстия для подсоединения воздуховодов, для возврата отфильтрованного теплого воздуха назад в производственный цех.
Промышленная аспирация есть мобильной, установлена на поворотные пластиковые колеса, для легкого перемещение по производственному цеху. Для перемещение достаточно небольших усилий одного человека.
Пыль и древесные отходы собираться в полиэтиленовые прозрачные мешки, которые герметично закреплены металлическими хомутами на корпусе фильтрационной установки.
Вибрационные электродвигателя позволяют в автоматическом режиме максимально эффективно производить встряхивание пыли с внутренней стороны фильтровальных рукавов, делая обслуживание установки более простым и сохраняя тем самым эффективность ее работы и продлевая срок службы фильтров.

КОНСТРУКТИВНЫЕ ПРЕИМУЩЕСТВА:
1.Полиэтиленовые мешки
- быстрое и удобное снятие/установка;
- прозрачность для контроля уровня наполнения;
- уплотнение по периметру.

2. Вибрационный электродвигатель
Вибрационный электродвигатель позволяет в автоматическом режиме максимально эффективно производить очистку фильтровальных рукавов, сохраняя тем самым эффективность работы установки и продлевая срок службы рукавов. Возможность регулировки интервала включения.

3. Насос высокого давления
Насос высокого давления:
- скорость воздушного потока до 32 м/с;
- на раме вентилятора имеются 4 виброгасителя для уменьшения вибрации при работе;
- корпус окрашен электростатической порошковой краской что исключает возникновение коррозии;
- используются высокоэффективные двигатели IE2-IE3.

4. Пульт управления
Отдельный пульт, позволяет включать и выключать установку при необходимости независимо от оборудования

5. Электрические компоненты
Электрические компоненты марки SIEMENS выполнены в соответствии стандартам СЕ.

Загрузить брошюру на промышленную аспирацию Unalsan UNS 283 KT 6500 м³/час |
![]() |
