ОСОБЕННОСТИ:
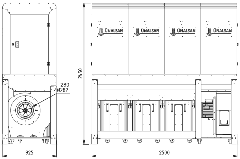
Аспирационная установка UNS 284 – промышленная аспирация, предназначена для высокоэффективной фильтрации воздуха от шлифовальных станков. Увеличенное количество фильтров и соответственно возросшая площадь фильтрации, а так же использование антистатических фильтров позволяет улавливать мелкодисперсную древесную пыль от шлифовального оборудования с диаметром частиц до 2 микрон. Эта промышленная аспирационная установка также может работать для фильтрации опилок и пыли во время работы оборудования на деревообрабатывающих и мебельных производствах.
Корпус аспирационной установки полностью закрыт металлическим кожухом, где все стыки листового металла герметизированы силиконом. Это позволяет использовать установку не только внутри цеха, но и на улице. При наружной установке аспирации, в верху кожуха есть технологические отверстия для подсоединения воздуховодов, для возврата отфильтрованного теплого воздуха назад в производственный цех.
Промышленная аспирация есть мобильной, установлена на поворотные пластиковые колеса, для легкого перемещение по производственному цеху. Для перемещение достаточно небольших усилий одного человека.
Пыль и древесные отходы собираться в выкатные металлические бункера, которые тоже установлены на поворотные пластиковые колеса, для удобства их дальнейшего опустошения. На каждом бункере есть большие смотровые окна для визуального контроля их наполнения.
Вибрационные электродвигателя позволяют в автоматическом режиме максимально эффективно производить встряхивание пыли с внутренней стороны фильтровальных рукавов, делая обслуживание установки более простым и сохраняя тем самым эффективность ее работы и продлевая срок службы фильтров.
|  |  | 
КОНСТРУКТИВНЫЕ ПРЕИМУЩЕСТВА:
1. Вибрационный электродвигатель
Вибрационный электродвигатель позволяет в автоматическом режиме максимально эффективно производить очистку фильтровальных рукавов, сохраняя тем самым эффективность работы установки и продлевая срок службы рукавов. Возможность регулировки интервала включения.

2. Насос высокого давления
Насос высокого давления:
- скорость воздушного потока до 28 м/с;
- на раме вентилятора имеются 4 виброгасителя для уменьшения вибрации при работе;
- корпус окрашен электростатической порошковой краской что исключает возникновение коррозии;
- используются высокоэффективные двигатели IE2-IE3.

3. Пульт управления
Отдельный пульт, позволяет включать и выключать установку при необходимости независимо от оборудования

4. Электрические компоненты
Электрические компоненты марки SIEMENS выполнены в соответствии стандартам СЕ.

| Загрузить брошюру на промышленную аспирацию Unalsan UNS 284 HTK 5000 м³/час | 
|  | 
 
                         
                         
                         
                 
                